JR花巻駅橋上化・東西自由通路整備に関する実施設計の概要についてお知らせします
JR花巻駅東西自由通路(駅橋上化)整備に関する実施設計を現在行っており、工事費算出結果や工事費削減検討の概要についてお知らせいたします。
なお、実施設計の完了は、令和8年2月末の予定です。
実施設計の概要
名 称:東北本線花巻駅自由通路及び橋上駅舎整備事業に係る実施設計
実施期間:令和6年11月から令和8年2月まで
内 容:
- 工事を実施するために必要な設計資料の作成
建築に係る配置図、平面図、断面図、構造図の作成
給排水設備、空調設備、昇降設備図の各種整備図面の作成
電線路設備整備図面の作成 - 整備費縮減の検討、整備スケジュールの精査
- 工事費の算出
- 建築基準法等の関係法令の手続
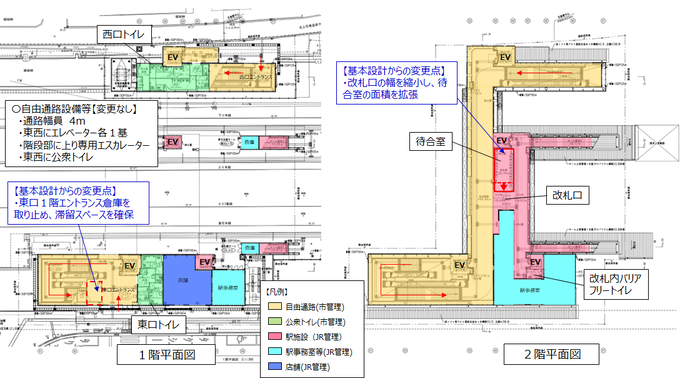
平面図
- 基本的な整備内容(自由通路の位置、幅員(4m)、設備(エレベーター、エスカレーター、公衆トイレ)について変更なし。
- 変更点として、利用者の利便性向上のため、東側1階エントランスの倉庫を取りやめ滞留スペースを確保するとともに、2階改札口の幅を縮小し待合室を拡張。

実施設計におけるコストダウン内容
建設資材物価や労務費の上昇をうけ、工事費に増大が見込まれることから、実施設計においてコストダウンを実施。
- 自由通路高さを低くし自由通路の幕天井を取りやめ、金属系仕上げ天井へ変更
- 庇(ひさし)の妻側の取りやめ
- 床タイルへ仕様変更(大判タイルから標準品へ変更)
- 自由通路内壁材の変更(準不燃木材利用から木質系シートへ変更)
- 屋根の融雪装置取りやめ など


※検討時点のイメージ図であり変更となる場合があります。
完成イメージ図(現時点)
東口外観図

※検討時点のイメージ図であり変更となる場合があります。
西口鳥観図(鳥目線から見た図)

※検討時点のイメージ図であり変更となる場合があります。
実施設計における事業費の推移
- 令和6年7月に完了した基本設計時点の概算事業費は約39.0億円(令和6年3月までの物価変動分を反映)
- 物価や労務費の変動が続いていることから、今回の実施設計において更なるコストダウンを図り、設計費の実績額を反映するとともに、物価及び労務費の変動を考慮し、令和8年度からから令和10年度の工事完了までの工事費をJR東日本が算出。
- 基本設計時の事業費約39億円から、実施設計において約4.7億円コストダウンを見込んだが、令和6年4月から令和7年10月までの物価及び労務費の上昇により約4.2億円増となり、令和7年10月までの物価及び労務費の変動分を含んだ事業費は約38億円と試算。
- 更に、物価及び労務費の変動分を年間約2.1億円の増と想定し、令和8年度から令和10年度までの物価及び労務費の変動分約6.3億円を含んだ最終的な事業費は約44.4億円と算出。
- 基本設計時点からは約5.4億円の増。

整備スケジュール
- 令和8年春 着工
- 令和8年秋頃 仮駅開業
- 令和10年秋頃 自由通路供用開始、駅開業

PDFファイルをご覧いただくには、「Adobe(R) Reader(R)」が必要です。お持ちでない方はアドビシステムズ社のサイト(新しいウィンドウ)からダウンロード(無料)してください。
より良いウェブサイトにするために、ページのご感想をお聞かせください。
このページに関するお問い合わせ
都市政策課
〒025-8601 岩手県花巻市花城町9番30号
都市デザイン係 電話:0198-41-3553 ファクス:0198-22-6846
公共交通係 電話:0198-41-3554 ファクス:0198-22-6846
公園緑地係 電話:0198-41-3570 ファクス:0198-22-6846
都市政策課へのお問い合わせは専用フォームをご利用ください。
